Empire McKinley 60 Direct-Vent Linear Gas Fireplace - DVCTL60
Empire McKinley 60 Direct-Vent Linear Gas Fireplace - DVCTL60
SKU:DVCTL60CFP95N
Free Shipping on $99+ - No Tax
Couldn't load pickup availability
YOUR LOCAL AUTHORITY HAVING JURISDICTION MAY ENFORCE BUILDING CODES UNIQUE TO YOUR LOCALE.
REMEMBER: CONFORMITY TO YOUR LOCAL BUILDING CODES IS ULTIMATELY YOUR RESPONSIBILITY. THUS, THE IMPORTANCE OF WORKING WITH PROFESSIONALS LICENSED BY YOUR STATE LICENSING BODY.
Requires Power Venting for installation--please call for details
This 60-inch fireplace offers a modern and traditional style with a unique wrap-around flame feature. With Truflame technology, it provides a realistic wood-burning look that will make it the center of your living room. Customize your fireplace with multiple logs sets, liners, and trim kits to fit your personal style.
Features
- Available in Natural Gas or Propane
- Customizable with a range of log sets, liners, and trim kits available
- Up to 58,000 BTU's
- Truflame technology to create a realistic wood-burning look
- Thermostat Variable Remote Control
- Accent lighting on/off with 6-step dimming
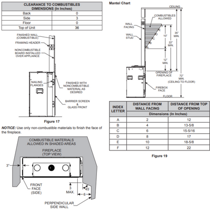
- Includes fine mesh barrier and non-combustible board
Dimensions
Dimensions
Actual Dimensions |
||
| Height | Width | Depth |
|---|---|---|
| 393/8" | 745/8" | 235/8" |
Framing Dimensions |
||
| Height | Width | Depth |
| 597/8" | 751/8" | 231/2" |
Specifications
Specifications
| Fuel Type: | Gas | |
|---|---|---|
| Vent Type: | Direct-Vent | |
| Ignition Type: | Electronic | |
| Installation Type: | Zero-Clearance | |
| Style: | Linear | |
| Weight: | 200 lbs. | |
| Model: | Natural Gas (NG) | Propane (LP) |
| Max. (BTU/HR): | 58000 BTU's | 58000 BTU's |
| Min. (BTU/HR): | BTU's | BTU's |
Technical Drawings
Technical Drawings
Installation Manual
Installation Manual
To Open the Installation Manual in another Window => Click Here
Warranty Policy
Warranty Policy
Exclusions from Warranty Coverage
- Provision of warranty services at the customer's location (on-site or in-home).
- Costs associated with removing parts prior to replacement.
- Installation of replacement parts or complete units.
- Labor expenses for diagnosing issues with potentially defective components.
- Initial installation costs and labor associated with installing warranty replacement parts.
To Open the Warranty Policy in another Window => Click Here

Prop 65 All Brands
Please see below for specific product warning labels. For additional information, please visit www.P65Warnings.ca.gov




