Empire Boulevard Slim 30 Linear Vent Free Gas Fireplace - VFSL30FP
Empire Boulevard Slim 30 Linear Vent Free Gas Fireplace - VFSL30FP
SKU:VFSL30FP7010N
Free Shipping on $99+ - No Tax
Couldn't load pickup availability
YOUR LOCAL AUTHORITY HAVING JURISDICTION MAY ENFORCE BUILDING CODES UNIQUE TO YOUR LOCALE.
REMEMBER: CONFORMITY TO YOUR LOCAL BUILDING CODES IS ULTIMATELY YOUR RESPONSIBILITY. THUS, THE IMPORTANCE OF WORKING WITH PROFESSIONALS LICENSED BY YOUR STATE LICENSING BODY.
This unique clean-burning fireplace features an elegant linear burner mounted between a matte-finished black full panel at the rear and a short tempered-glass deflector panel at the front. Aided by multiple reflections through the glass in front, the Boulevard SL creates high-definition contrast between the flames and the black panel. With its clean lines and muted black finish, the Boulevard SL represents the last word in contemporary styling.
Empire Boulevard Slim 30 Brochure
Features
- See all available accessories here
- For a surface mounted installation, order the‚ black mitered front and black cabinet wrap
- For a partially recessed installation, order the black mitered front
- For a fully recessed installation, order the narrow black trim kit
- Up to 14,000 BTUs
- Equipped with a state-of-art safety pilot burner
- Equipped with Oxygen Depletion Sensor to continuously monitor CO2 levels
- Includes an electronic intermittent ignition system
- Non-combustible Board (for full or partially recessed installation)
- On-Off Wall Switch with 10-ft Extension Wire
- Battery Backup with 10-ft Extension Wire
- Fine Mesh Barrier Screen
Dimensions
Dimensions
Actual Dimensions |
||
| Height | Width | Depth |
|---|---|---|
| 177/8" | 301/4" | 51/2" |
Framing Dimensions |
||
| Height | Width | Depth |
| 291/2" | 303/4" | 51/2" |
Specifications
Specifications
| Fuel Type: | Gas | |
|---|---|---|
| Vent Type: | Vent-Free | |
| Ignition Type: | Electronic | |
| Installation Type: | Zero-Clearance | |
| Style: | Linear | |
| Weight: | 50 lbs. | |
| Model: | Natural Gas (NG) | Propane (LP) |
| Max. (BTU/HR): | 14,000 BTU's | 12,000 BTU's |
| Min. (BTU/HR): | 10,000 BTU's | 10,000 BTU's |
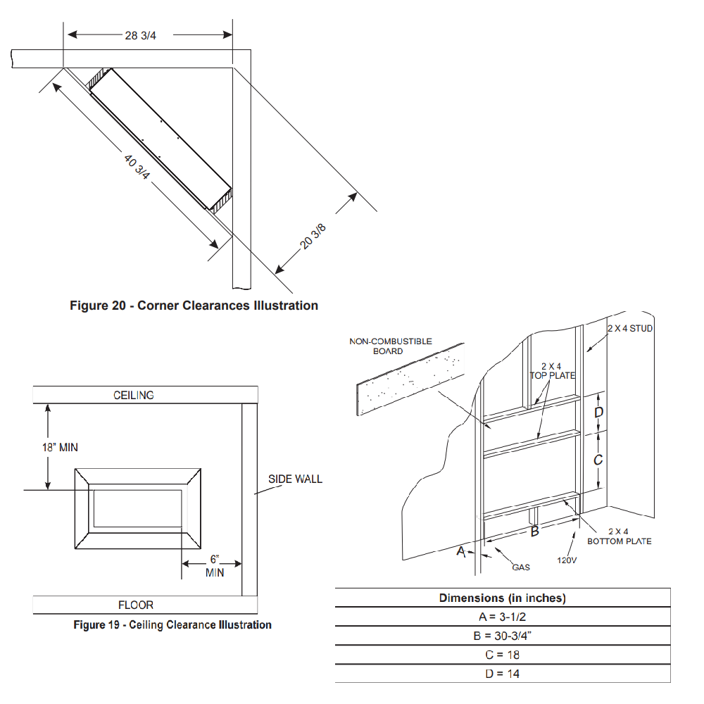
Technical Drawings
Technical Drawings
Installation Manual
Installation Manual
To Open the Installation Manual in another Window => Click Here
Warranty Policy
Warranty Policy
Exclusions from Warranty Coverage
- Provision of warranty services at the customer's location (on-site or in-home).
- Costs associated with removing parts prior to replacement.
- Installation of replacement parts or complete units.
- Labor expenses for diagnosing issues with potentially defective components.
- Initial installation costs and labor associated with installing warranty replacement parts.
To Open the Warranty Policy in another Window => Click Here

Prop 65 All Brands
Please see below for specific product warning labels. For additional information, please visit www.P65Warnings.ca.gov




